Fritidshus Högskär 2rum, Kök/allrum, toalett och förråd 60kvm
(Uppskattad tid från beställningsdatum till leverans hos kund. Kan påverkas beroende på valt fraktsätt. Lämna kommentar på order vi särskilda önskemål)
Fritidshus Högskär 2rum, Kök/allrum, toalett och förråd 60kvm är restnoterad och skickas så snart den finns i lager igen.
Det gick inte att läsa in tillgängligheten för upphämtning
- 24 månader räntefritt
- Lätt att bygga
- 4.8 i kundbetyg
- Över 40 års erfarenhet
- Kundservice i toppklass
Beskrivning
Beskrivning
House Configuration Details
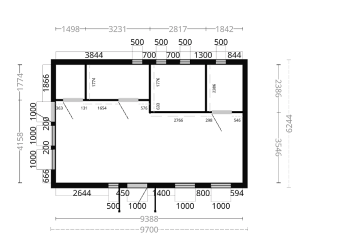
HUSKONFIGURATION - 1.0.1260588 ═══════════════════════════════════════════════════════════════ BYGGNAD: • Storlek: 6244×9700mm (60.57m²) • Total byggarea: 6244mm x 12100mm (75.55m²) • Vägghöjd - Väggpanel: 2.387m • Taktyp: Fackverktakstol () • Takfärg: Ingen • Takavvattning: Nej • Färg vägg: Obehandlad • Färg Vindskivor och foder: Grundmålad vit TEKNISKA SPECIFIKATIONER: • Takvinkel: 32° • Nockhöjd: 4.733m • Nocklängd: 13.080m • Längd Taknock till takfot: 4.233m • Undertak: Undertak med kondensduk & läkt CARPORT: • Bredd: 0mm • Längd: 2400mm ISOLERING: • Tak: 145mm • Vägg: 95.00mm OSB: • Tak m²: 60.14 • Vägg m²: 152.65 INNERVÄGG: Storlek m²: 38.17 Dörr: 3x Innerdörr 8x21 Tillbehör: MODULER (33 st totalt): • 1X Modul Altandörr helglas med spanjolett 10x21 (trä/trä) - m12 • 2X Modul h4v • 5X Modul m6 • 2X Modul h4h • 2X Modul m3 • 2X Modul 10x18 3-glasfönster fast dubbelhärdat - m12 • 2X Modul h4v • 5X Modul m6 • 2X Modul h4h • 2X Modul m3 • 2X Modul 10x12 3-glasfönster 1-luft vridfönster - m12 • 2X Modul h4v • 5X Modul m6 • 2X Modul h4h • 2X Modul m3 • 1X Modul Ytterdörr med smalt fönster 10x21 - m12 • 2X Modul h4v • 5X Modul m6 • 2X Modul h4h • 2X Modul m3 • 1X Modul 5x18 3-glasfönster fast dubbelhärdat - m12 • 2X Modul h4v • 5X Modul m6 • 2X Modul h4h • 2X Modul m3 • 1X Modul 5x5 2-glasfönster sidohängt - m12 • 2X Modul h4v • 5X Modul m6 • 2X Modul h4h • 2X Modul m3 • 3X Modul 5x12 2-glasfönster sidohängt - m12 • 2X Modul h4v • 5X Modul m6 • 2X Modul h4h • 2X Modul m3 • 2X Modul h4v • 5X Modul m6 • 2X Modul h4h • 2X Modul m3
Många bilder är 3D-visualiseringar och kan skilja sig från verkligheten.
Finansieringsexempel - Vad blir din månadskostnad?
Med vår finansieringskalkylator kan du enkelt se vilken månadskostnad ditt drömprojekt skulle få om du väljer att dela upp ditt köp. Du kan välja mellan att dela upp hela ditt köp eller bryta ner det till mindre delar där du kan betala en del som en kontantinsats (förskottsfaktura från Sorselestugan) och en resterande del på delbetalning via Resurs bank.
Produktens pris: 379.000,00 kr
Specifikation
* Angivna siffror i finansieringen är en uppskattning och gäller endast vid godkänd förfrågan
Exempel: Handla för 10 000 kr
Exemplet baseras på ett köp den 15e dagen i en kalendermånad och är beräknat 2023-07-11. Den effektiva räntan beräknas enligt Konsumentverkets allmänna råd om konsumentkrediter. Exemplet förutsätter att räntan och avgifterna är oförändrade under hela kreditperioden.
Om du inte kan betala tillbaka skulden i tid riskerar du en betalningsanmärkning. Det kan leda till svårigheter att få hyra bostad, teckna abonnemang och få nya lån. För stöd, vänd dig till budget- och skuldrådgivningen i din kommun. Kontaktuppgifter finns på konsumentverket.se







